Экономика

Башкирская компания стала победителем премии «Бизнес-Успех»

Башкирская компания стала победителем премии «Бизнес-Успех»

Компания «Way Pack» стала победителем регионального этапа национальной премии.

На конференцию «Растениеводство России» «Агроинвестора» приехали более 200 участников

На конференцию «Растениеводство России» «Агроинвестора» приехали более 200 участников

Участниками ежегодной конференции «Растениеводство России» проекта «Агроинвестор», поддержанной ведущими отраслевыми союзами и объединениями, в этом году стали более 200 представителей АПК со всей России и свыше 20 спикеров.

Михаил Мишустин обратился к всероссийскому форуму МФЦ в Уфе

Михаил Мишустин обратился к всероссийскому форуму МФЦ в Уфе

Премьер-министр правительства России Михаил Мишустин направил приветствие участникам VI Всероссийского форума многофункциональных центров предоставления государственных и муниципальных услуг, проходящего в столице Башкирии.

Башкирии выделят 1,5 млрд рублей на снижение напряженности на рынке труда

Башкирии выделят 1,5 млрд рублей на снижение напряженности на рынке труда

В 2023 году Башкортостану из федерального бюджета на реализацию дополнительных мероприятий, направленных на снижение напряженности на рынке труда, выделят около 1,5 млрд рублей.

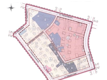
Квартал в историческом центре Уфы застроят высотками

Квартал в историческом центре Уфы застроят высотками

Глава администрации Уфы утвердил план застройки квартала, ограниченного улицами Дорофеева, Коммунистическая, Новомостовая и Мингажева в Кировском районе столицы.

В Башкирии убрано 20% площадей масличных культур

В Башкирии убрано 20% площадей масличных культур

В Башкирии убрано 20% площадей масличных культур, сообщили в минсельхозе РБ.

В Башкирии обсудили устойчивость предприятий в условиях частичной мобилизации

В Башкирии обсудили устойчивость предприятий в условиях частичной мобилизации

В правительстве Башкирии обсудили вопросы производственной деятельности республиканских предприятий в условиях частичной мобилизации.

В Башкирии обновили участок автодороги Бураево-Старобалтачево-Куеда

В Башкирии обновили участок автодороги Бураево-Старобалтачево-Куеда

Дорожники завершили работы раньше заявленного срока, сообщает пресс-служба правительства РБ.

Башкирские аграрии экспортируют зерно нового урожая

Башкирские аграрии экспортируют зерно нового урожая

Покупателями зерна в нынешней геополитической ситуации пока являются, в основном, страны Таможенного союза и СНГ, сообщает пресс-служба управления Россельхознадзора по РБ.

Принят закон о кредитных каникулах для участников специальной военной операции

Принят закон о кредитных каникулах для участников специальной военной операции

Депутатами Госдумы РФ принят закон о кредитных каникулах для участников специальной военной операции.