В историческом центре Уфы за счет сноса частного сектора будут реконструированы детсад и гимназия
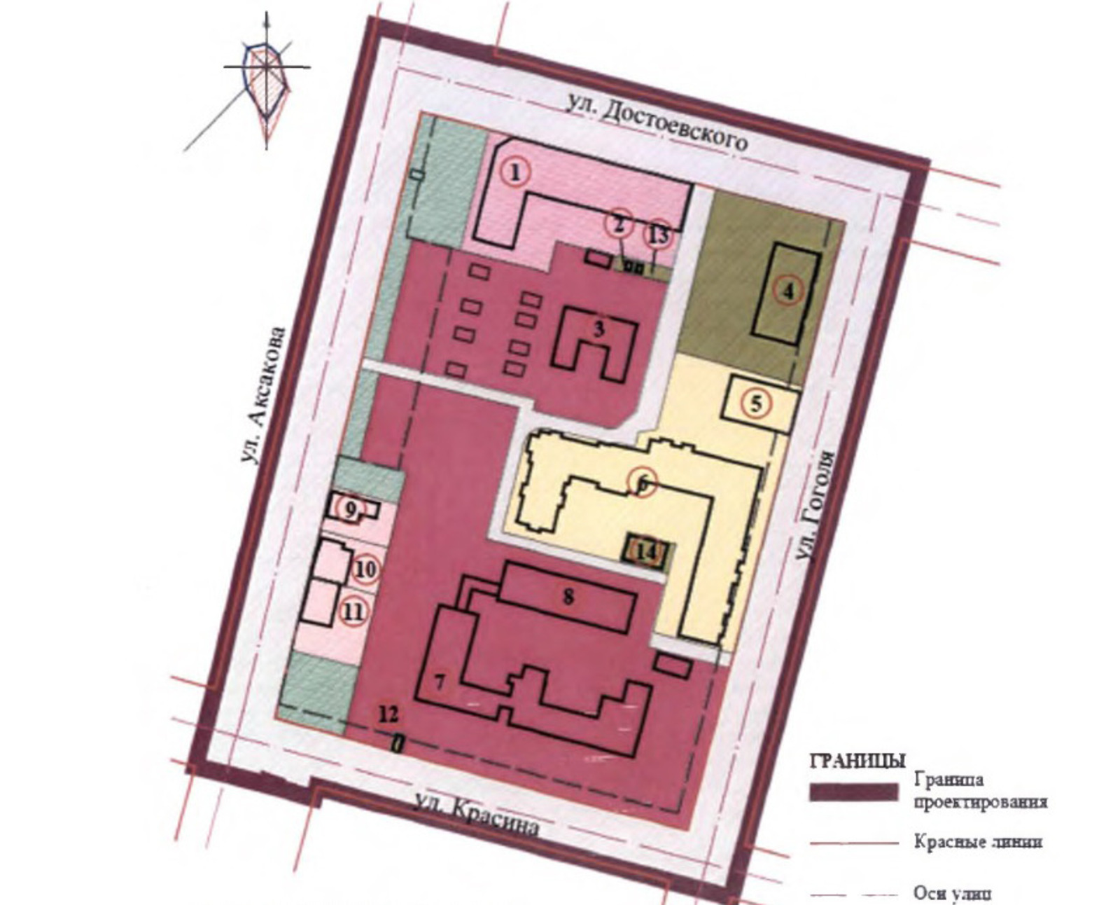
В Уфе утвержден проект планировки территории, ограниченной улицами Достоевского,Гоголя, Красина и Аксакова.
В Уфе утвержден проект планировки территории, ограниченной улицами Достоевского,Гоголя, Красина и Аксакова.
На проектируемой территории располагаются 1-2-этажные жилые дома усадебного типа, двухэтажные жилые дома, 8-12-этажный жилой дом со встроено-пристроенными предприятиями обслуживания. Кроме того, вдоль улицы Аксакова расположены объекты культурного наследия.
Проектом предлагается сохранение объектов культурного наследия с изменением функционального назначения с жилого на общественное, благоустройство территории квартала и снос жилой застройки общей площадью 2,39 тысяч квадратных метров. Размещение новой жилой застройки проектом не предусмотрено.
На месте сносимого жилья проектом предусмотрена реконструкция здания детского сад № 6 с увеличением мощности с 80 до 188 мест, а также реконструкция существующего здания гимназии №91 и строительство нового корпуса с увеличением общей вместимости с 680 до 1110 учащихся и территории учебного заведения.
Последние новости

Ежегодный форум «Сильные идеи для нового времени»
Форум объединяет лидеров решений в сфере предпринимательства, креативной экономики, инноваций, социального развития, технологического суверенитета, профессиональной самореализации,

Наилучшее здоровье с наименьшими затратами!
Октябрьцы приняли участие в акции «10000 шагов к жизни», которая в этом году проходит в 10-й раз.

Зарегистрировать ООО просто
Наиболее распространённой организационно-правовой формой ведения бизнеса является общество с ограниченной ответственностью (далее – ООО).

Преобразователь частоты
Все преобразователи проходят контроль и имеют сертификаты с гарантией